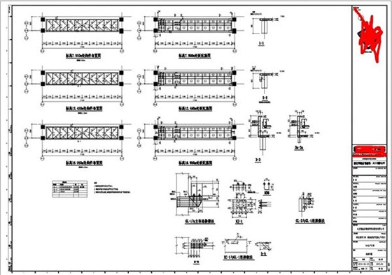
本工程位于北京大兴区亦庄,为连接两栋楼钢结构三层连廊,跨度17.1m,钢梁采用焊接H型钢截面,楼面采用压型钢板浇筑混凝土,钢结构主梁采用H700X300X10X25,H300X150X6X8,斜撑采用 L100x5,此项目由龙源圣钢结构公司深化设计,制作、安装完成。
龙源圣-三层钢结构连廊设计方案
龙源圣-三层钢结构连廊施工照片
龙源圣-三层钢结构连廊施工照片
龙源圣-三层钢结构连廊施工照片
北京龙源圣建筑工程有限公司是一家建筑结构改造加固、钢结构及防水防腐保温工程为一体的专业化施工企业,为您提供建筑结构加固,钢结构工程,结构加固设计,钢结构工程安装等多种服务。公司拥有特种专业加固工程专业承包资质、钢结构工程专业承包资质、装饰装修工程专业承包资质及防水防腐保温工程专业承包资质。

